视频课程精选
- 2018-12-29 12:21 发布
- 浏览 1137 次
- 下载 1 次
【毕业设计】15kW-35℃制冷机组设计
8.5
分
-
大小: 8M价格: 40 百家币更新时间: 2018-12-29
资料简介
一、资料介绍:
1)、毕业设计原文
2)、毕业设计开题报告
3)、毕业设计外文翻译
4)、毕业设计答辩申请
5)、毕业设计配套系统图
6)、毕业设计配套组装图
7)、毕业设计配套零部件图
8)、毕业设计配套电气图
二、内容摘要:
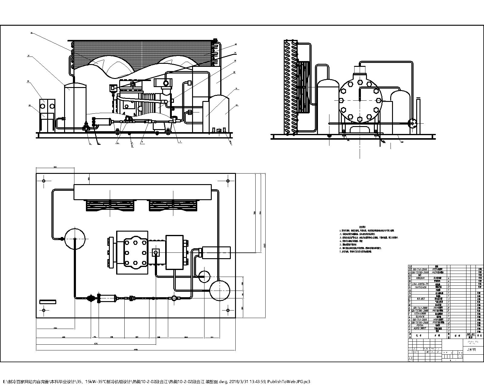
此次毕业设计的课题是15kW-30℃制冷机组。其中制冷剂为R404A,系统制冷量为15kW,冷凝温度50℃,蒸发温度-35℃,过冷度10℃,过热度20℃,进风温度35℃,出出温度45℃。
本设计主要部件选用的是谷轮公司的6SUW-400E活塞式半封闭单级压缩机、杭州奇诺机电设备有限公司的YWF(K)4D 450-Z型外转子轴流风机、杭州钦宝B3-052 铜钎焊板式换热器、艾默生公司T系列外热力膨胀阀中的X2244088B(TCLE系列)。
除此以外,本文还完成了热力计算、冷凝器设计计算以及辅助设备的选型问题。
关键词 制冷 制冷机组 设计计算
三、部分资料截图:
版权声明
1、转载或引用本网站内容须注明原网址,并标明本网站网址(http://www.zhilengbj.cn)。
2、本网站所有视频、电子书、图纸、文献等均来自网络,仅供大家交流与学习,不得用于商业用途
3、如果侵犯了你的权益,请发邮件至:coolgou1987@126.com,我们会及时删除侵权内容,谢谢合作!。
4、对不遵守本声明或其他违法、恶意使用本网站内容者,本网站保留追究其法律责任的权利。
唯一网址: http://www.zhilengbj.cn/thread-57-1-1.html
1)、毕业设计原文
2)、毕业设计开题报告
3)、毕业设计外文翻译
4)、毕业设计答辩申请
5)、毕业设计配套系统图
6)、毕业设计配套组装图
7)、毕业设计配套零部件图
8)、毕业设计配套电气图
二、内容摘要:
此次毕业设计的课题是15kW-30℃制冷机组。其中制冷剂为R404A,系统制冷量为15kW,冷凝温度50℃,蒸发温度-35℃,过冷度10℃,过热度20℃,进风温度35℃,出出温度45℃。
本设计主要部件选用的是谷轮公司的6SUW-400E活塞式半封闭单级压缩机、杭州奇诺机电设备有限公司的YWF(K)4D 450-Z型外转子轴流风机、杭州钦宝B3-052 铜钎焊板式换热器、艾默生公司T系列外热力膨胀阀中的X2244088B(TCLE系列)。
除此以外,本文还完成了热力计算、冷凝器设计计算以及辅助设备的选型问题。
关键词 制冷 制冷机组 设计计算
三、部分资料截图:
版权声明
1、转载或引用本网站内容须注明原网址,并标明本网站网址(http://www.zhilengbj.cn)。
2、本网站所有视频、电子书、图纸、文献等均来自网络,仅供大家交流与学习,不得用于商业用途
3、如果侵犯了你的权益,请发邮件至:coolgou1987@126.com,我们会及时删除侵权内容,谢谢合作!。
4、对不遵守本声明或其他违法、恶意使用本网站内容者,本网站保留追究其法律责任的权利。
唯一网址: http://www.zhilengbj.cn/thread-57-1-1.html
制冷系统下载排行
名称
趋势
下载量
-
一、资料介绍: 1)、毕业设计原文 2)、毕业设计开题报告 3)、毕业...[详情]
制冷系统最新收录
名称
趋势
浏览量
-
【课程设计】65KW管壳式干式蒸发器设计 1223
-
【毕业设计】8KW -50℃低温制冷机组 1027
-
【毕业设计】15kW-35℃制冷机组设计 1137
热门排行

















