• 公众号

    每天获取免费知识

  • 视频号

    扫一扫免费观看视频

    -->
  • 直播平台

    进入视频直播平台

  • 注册会员

  • 联系客服
    点击联系客服

    在线时间:9:00-18:00

    客服微信

    xiaoniba95

    电子邮件

    coolgou1987@126.com
  • 客服微信

    扫描二维码

    添加客服微信号

  • APP下载

    制冷APP

    制冷百家网络大学

  • 微信公众

    扫描二维码

    关注制冷百家微信公众号

【电子书】冷库制冷工程设计实例图集

[复制链接]
admin 发表于 2019-1-24 15:14:03 | 显示全部楼层 |阅读模式 打印 上一主题 下一主题
【电子书】冷库制冷工程设计实例图集
  • 文件大小122MB
  • 上传时间2019-01-24
  • 下载权限冷冻冷藏VIP、全站VIP、终极VIP
  • 提取码加入冷冻冷藏VIP,查看提取码
分享至:


【电子书】冷库制冷工程设计实例图集


《冷库制冷工程设计实例图集》内容丰富,实用性强。既有设计参数,又有设计实例,“强制规范”条款与计内容有机结合起来。《冷库制冷工程设计实例图集》既可作为设计人员的应用手册,也可作为施工人员、管理人员和大中专学生的参考资料。
2019-01-24_150337.png


目录[url=]编辑[/url]
前言
第一章 制冷工程设计的制图标准及深度要求
一、制冷\工程制图标准
二、制冷工程常用设计规范及手册
三、对制冷设计深度的有关规定
第二章 冷库制冷工程设计应执行的规范条款及相应的措施
一、库址选择和总平面设计
二、冷库设计
三、制冷机房、变配电所和控制室设计
四、制冷管道
第三章 与设计相关的知识
一、施工图报审程序
二、图纸审查样例
第四章 工程设计实例
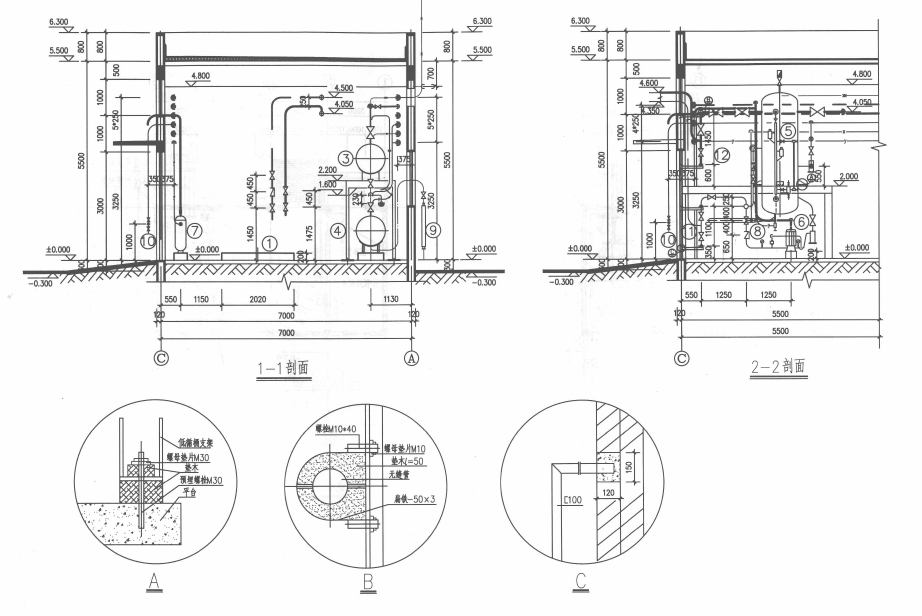
实例1 金地集团1150t高温冷库制冷系统设计

2019-01-24_150417.png

2019-01-24_150442.png

2019-01-24_150457.png

2019-01-24_150521.png

2019-01-24_150532.png

2019-01-24_150543.png

2019-01-24_150603.png

2019-01-24_150758.png

2019-01-24_150809.png

2019-01-24_150823.png

2019-01-24_150838.png



回复

使用道具 举报

您需要登录后才可以回帖 登录 | 立即注册

本版积分规则

关注0

粉丝276

帖子328

发布主题
一周下载排行最近7x24小时热帖
最新发布
关闭

站长推荐课程 上一条 /1 下一条

制冷行业在线学习平台
资 料 申 明
本网站只做资料收集和整理
整理不易,接受自愿打赏

联系微信号

tuzige1986 在线QQ咨询
{360自动收录;}